Sold

Bellevue

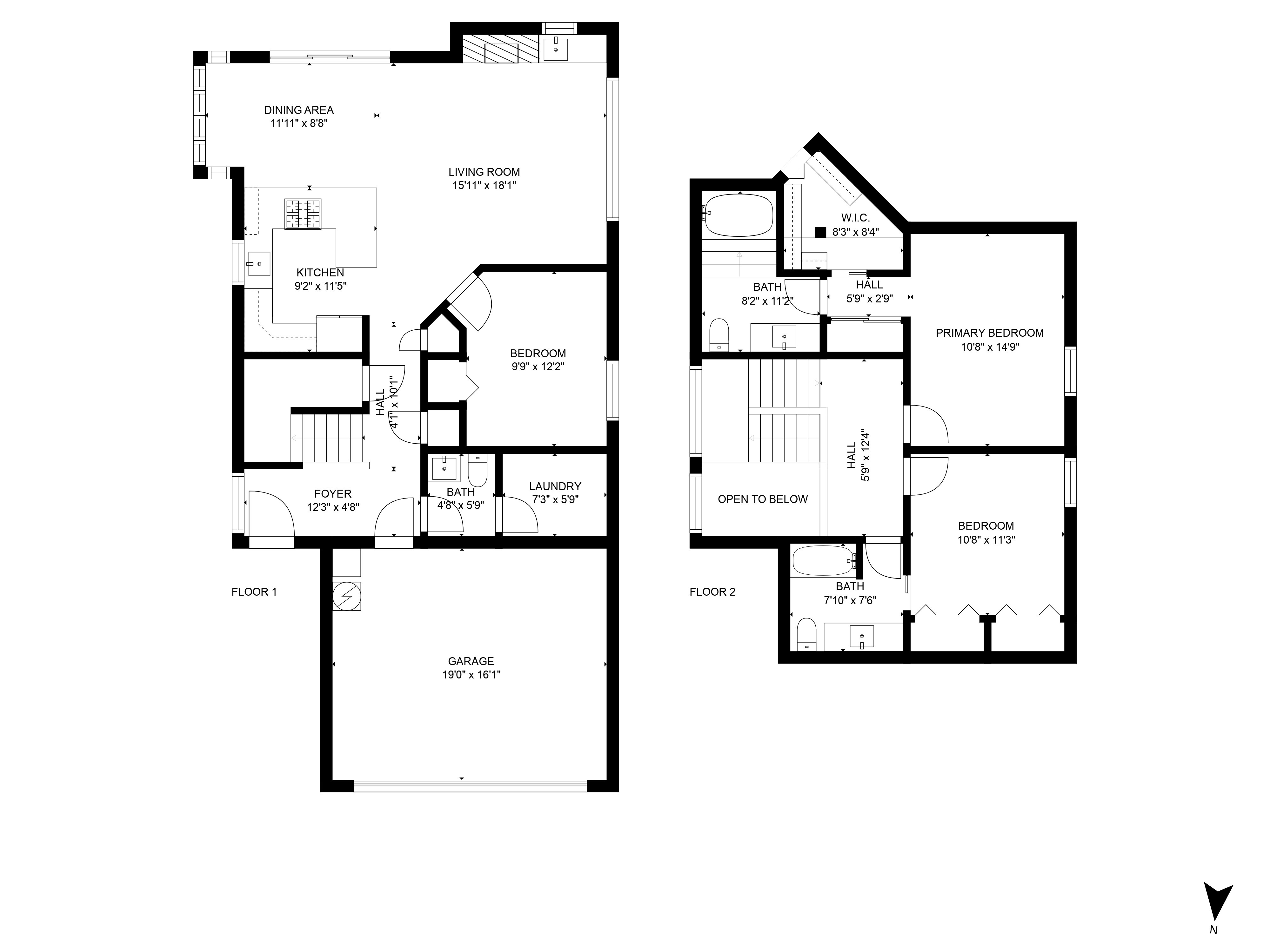
This single-family home was fully remodeled into a light-filled, modern 3-bedroom, 2.5-bath residence just minutes from downtown Bellevue. The project included a complete upgrade of major systems and finishes, with a new roof, furnace with A/C, hardwood flooring, carpet, and fully renovated kitchen and bathrooms. The layout was redesigned to create an open-concept main floor that seamlessly connects indoor and outdoor living, opening to a fully fenced backyard with a private patio. A chef’s kitchen was delivered with quartz countertops and high-end stainless steel appliances. Upstairs, two primary suites were developed to maximize comfort and functionality, while the main floor was configured with a flexible space adaptable as a bedroom, office, or den. The home was completed with ample storage, including two large attic spaces, and a spacious 2-car attached garage

Neighbour

Bellevue

Bedrooms

3

Baths

3

Sq

1660

Total Sq

3493

Interest Points

  • Elementary School: Enatai Elem
  • Middle Or Junior High School: Chinook Mid
  • High School: Bellevue High
  • High School District: Bellevue
  • Bus Line Nearby
  • Elite Fitness Training
  • Fitness Forward Studio
  • Z-Ultimate Self Defense Studio
  • Wildwood Park
  • Bellevue Yacht Basin
  • Bellevue Fire Department

Floor Plans

Floor Plan